$74,900 for Sale
3326 s saginaw, burton, MI 48529
Property Description
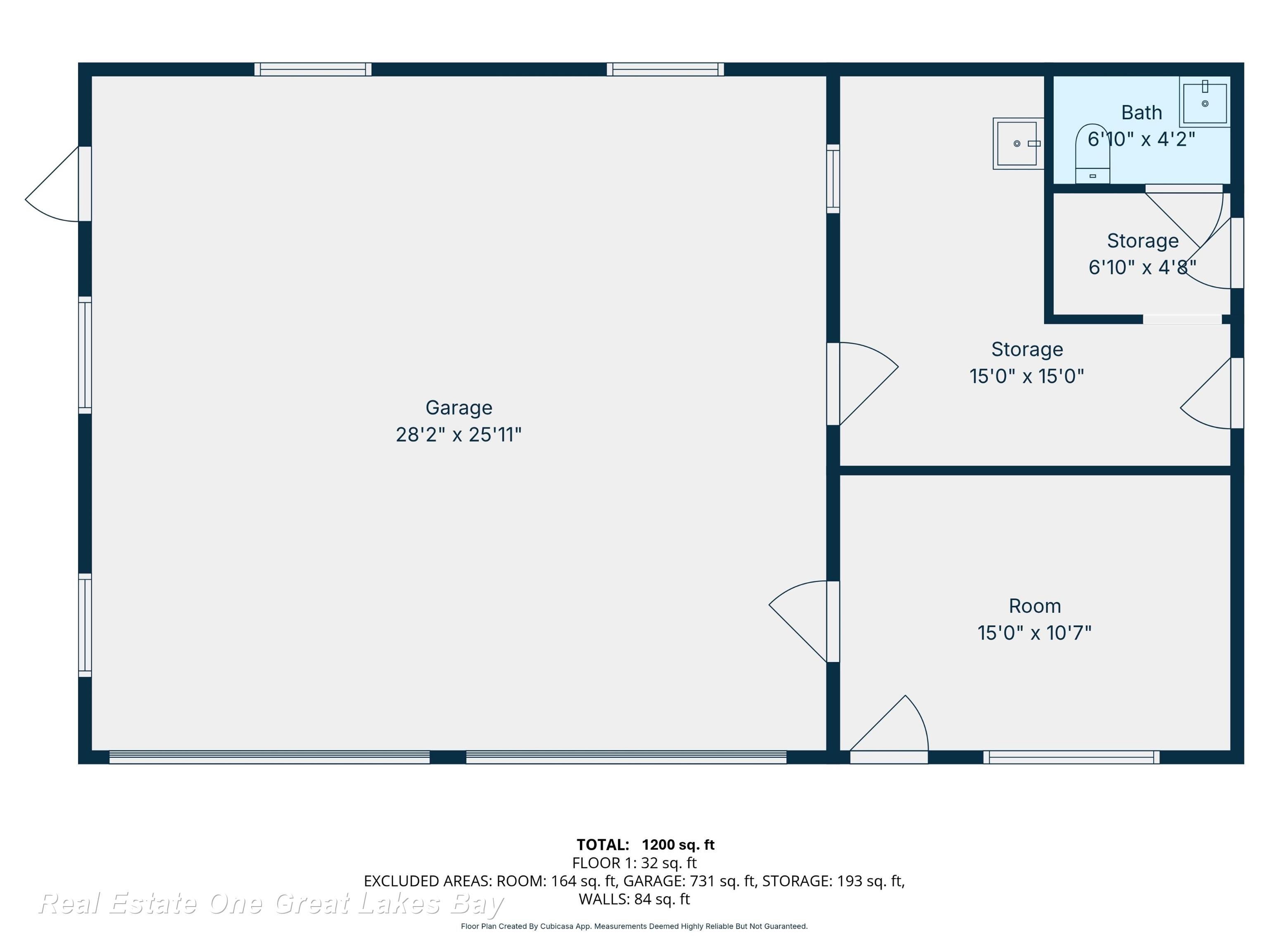
Perfect for an entrepreneur or investor looking for a turnkey Auto Repair Facility in the City of Burton's prime location. Don?t miss this rare opportunity to own a solid commercial block building on a high-traffic main road! Zoned C2 General Business, this property is ideal for a variety of commercial uses. Property Features: Spacious office area, storage space, bathroom, two garage bays with an automobile hoist. New roof was installed in 2017. Ample visibility and easy access for customers. Call today to schedule your private showing and take advantage of this incredible value. This property is being sold AS IS and is priced to sell fast!
General Information
Sale Price: $74,900
Price/SqFt: $62
Status: Active
MLS#: 50193095
City: burton
Post Office: burton
County: Genesee
Acres: 0.25
Lot Dims: irregular
Size: 1,200 sq.ft.
Acreage: 0.25 est.
Year Built: 1951
Property Type: Commercial/Industrial
Style:
Tax, Fees & Legal
Est. Summer Taxes: $2,603
Est. Winter Taxes: $1,369

Information provided by East Central Association of REALTORS
® Copyright 2026
All information provided is deemed reliable but is not guaranteed and should be independently verified. Participants are required to indicate on their websites that the information being provided is for consumers' personal, non-commercial use and may not be used for any purpose other than to identify prospective properties consumers may be interested in purchasing.
Listing By: Wendy Schmitz of Real Estate One Great Lakes Bay, Phone: 989-607-2100